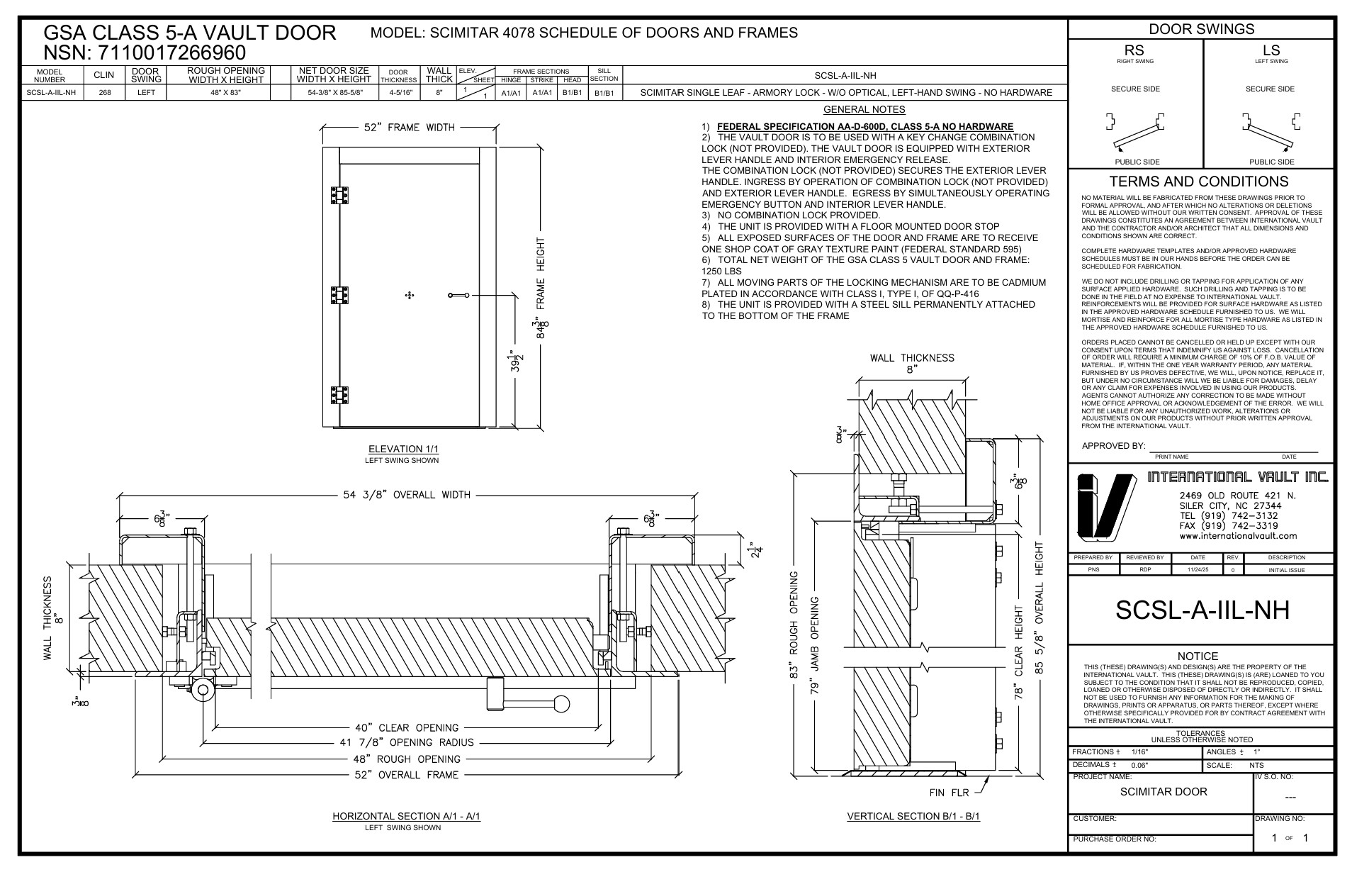
Class 5-A Vault Door -SCSL-A-IIL-NH
Compliant with AA-D-600D standards for Class 5 GSA Approved Vault Doors. Designed specifically for use with our MegaCrete Vault and Lightweight Modular Vaults, the Class 5 Scimitar vault door offers a high degree of burglary resistance that meets AA-D-600D GSA Class 5 standards.
As a GSA contract awardee for Solicitation 47QSSC-25-R-3040N, International Vault boasts 20 new National Stock Numbers for Vault Doors compliant with AAD-600D available for purchase through the GSA Advantage Program. The SCSL-A-IIL-NH model listed below complies with stringent GSA specifications and standards.

SCSL-A-IIL-NH
- NSN 7110-01-726-6960
- 40" x 78" Armory Door
- Left Opening Swing
- Without Optical Device
- No Exterior Hardware
Lorem ipsum dolor

