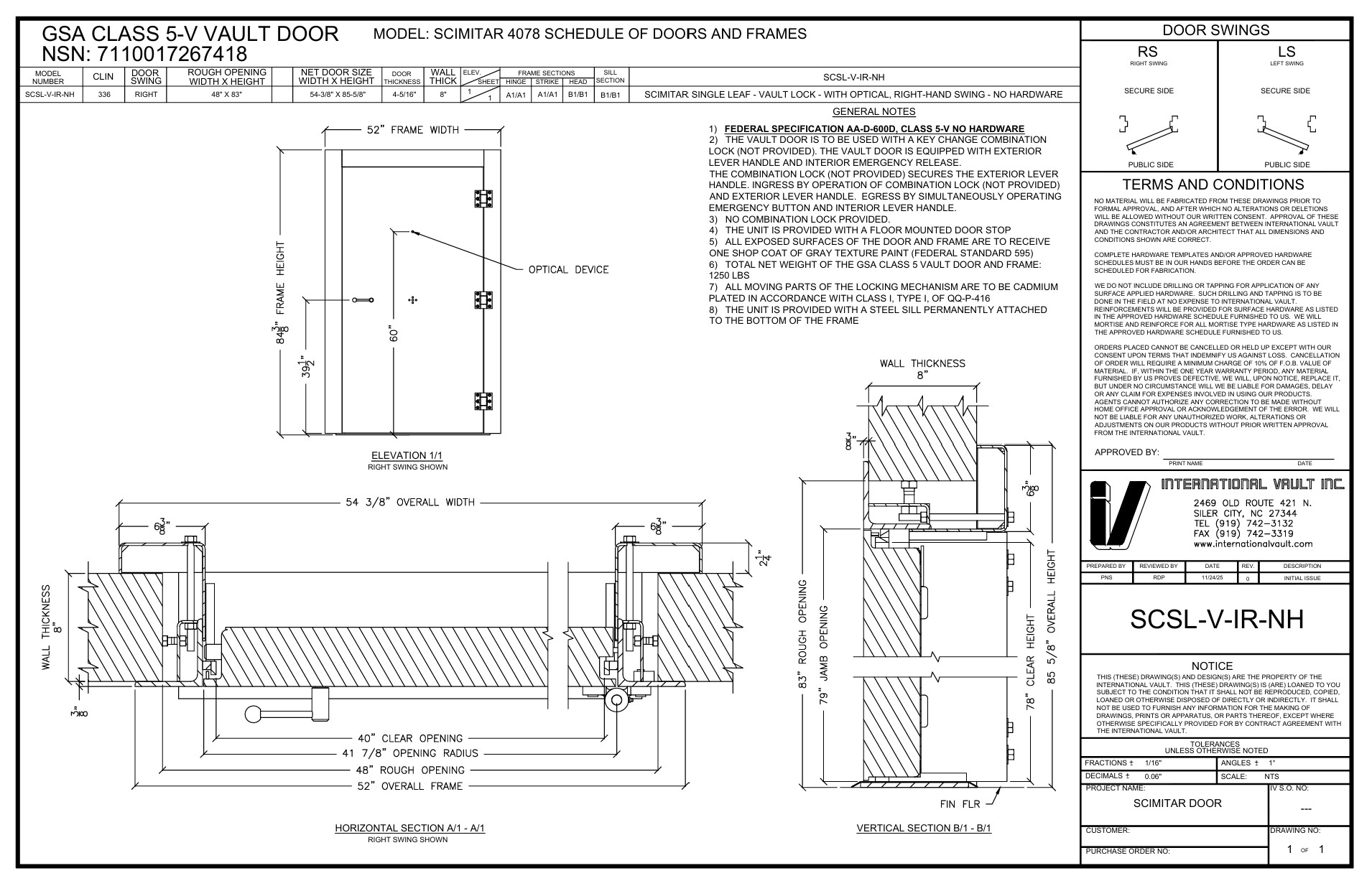
Class 5-V Vault Door – SCSL-V-IR-NH
Compliant with AA-D-600D standards for Class 5 GSA Approved Vault Doors. Designed specifically for use with our MegaCrete Vault and Lightweight Modular Vaults, the Class 5 Scimitar vault door offers a high degree of burglary resistance that meets AA-D-600D GSA Class 5 standards.
As a GSA contract awardee for Solicitation 47QSSC-25-R-3040N, International Vault boasts 20 new National Stock Numbers for Vault Doors compliant with AAD-600D available for purchase through the GSA Advantage Program. The SCSL-V-IR-NH model listed below complies with stringent GSA specifications and standards.

SCSL-V-IR-NH
- NSN 7110-01-726-7418
- 40" x 78" Vault Door
- Right Opening Swing
- With Optical Device
- No Exterior Hardware
Lorem ipsum dolor

